Two‑story historic stone house with dormer windows, chimneys, and a snow‑covered roof, surrounded by trees in a winter setting at Awbury Arboretum

Awbury Arboretum Historic House Renovations

Philadelphia, Pennsylvania

Completed 2026

Official Historic Houses of Awbury name:

The Shippen and Esther Emlen Lewis house

The Shippen and Esther Emlen Lewis house, built in 1921 by I. A. Dunkelberger, is an integral part of historic Awbury Arboretum. In the eyes of the Awbury Arboretum Association, circa 2008,

“The Historic Houses of Awbury celebrates the existence and survival of a unique group of buildings whose history began over a century and a half ago. Their story is an important part of the history of the growth of Philadelphia’s early suburbs.”

Skyplane is honored to respectfully contribute to this special place through the historically thoughtful and client-centered design challenges of creating a living suite for aging family within the home’s third floor.

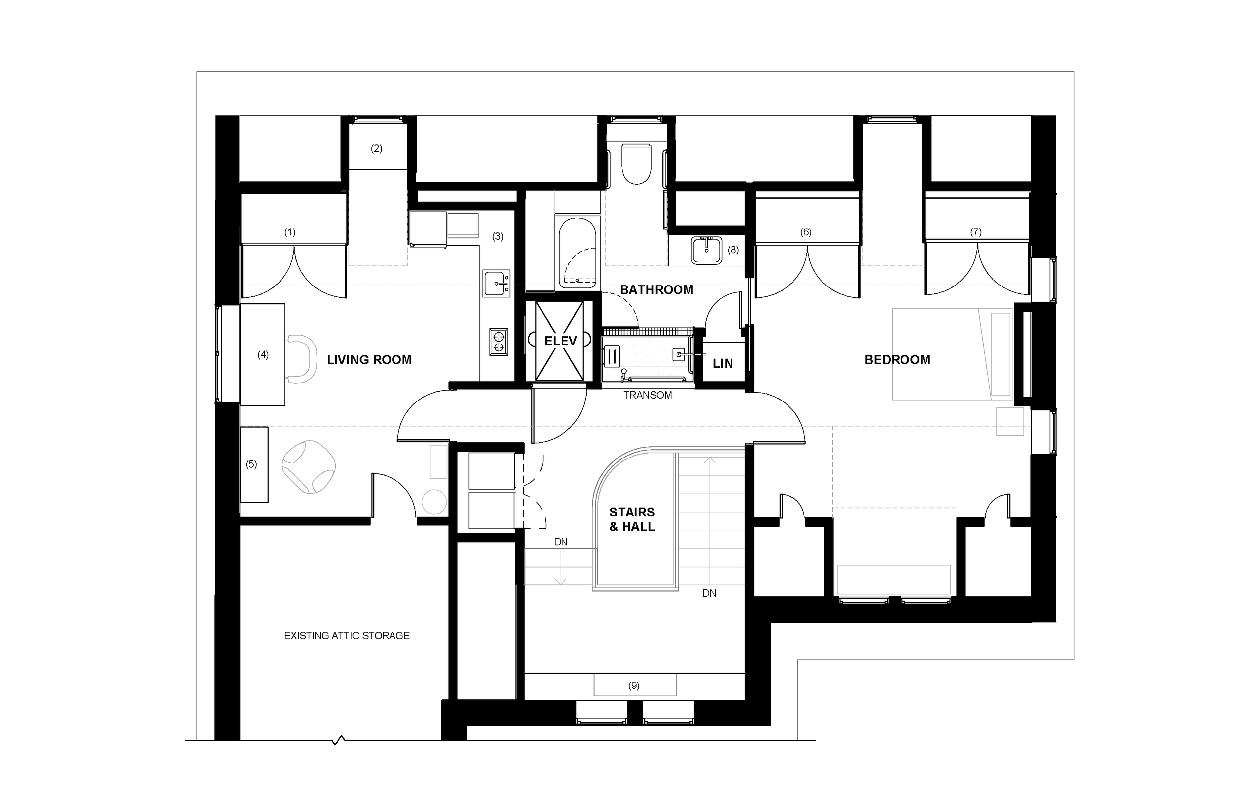
In early conversations with the client and general contractor, the challenges of installing a 3-floor chairlift up the primary historically detailed stair became present immediately when compared with a personal home-elevator. Largely located within the footprint of existing closets, and easily accessible from a small corner of the large existing entry foyer, the elevator presence within the building is light, while its impact on accessibly is profound.

Circulation to the third floor is now possible by way of an unadulterated main stair (and) a well-integrated elevator, each one landing on the 3rd floor “attic” space formed by a wide dormer roof and a series of dormers. Within this space, a triptych-ordered private suite unfolds around the central service core; central corridor, elevator, and accessible bathroom, flanked by a master bedroom and living space.

Naturally finished wood cabinetry in the form of large built-in closets, a kitchenette, ADA vanity, built-in window seat, and custom desk and credenza provide a further sense of continuity throughout the new living space.

Project Team

Architect

Builder

Cabinetry

Plumber

Electrician

Skyplane Studio Architects

Caleb Schodt, CWIOH

Fiorella Woodworking