Queen Village Rowhouse

Philadelphia, PA

In Construction

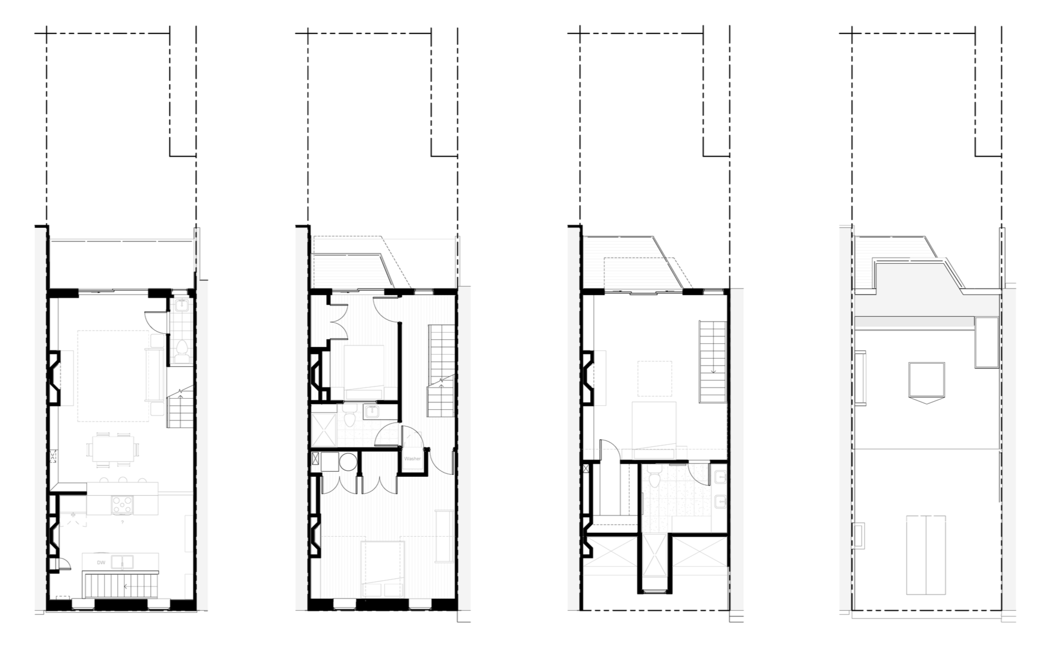
Located within the historic fabric of Queen Village, this three-story rear addition reconsiders the rowhouse not as a singular object addressing the street, but as part of a collective interior landscape formed by the block’s shared rear yards. Set behind the public façade and largely exempt from historic review, the project uses this condition to explore a quieter form of urban infill—one that turns inward, engaging light, air, and community rather than frontage.

The new volume projects into the rear yard as a vertical sequence of exterior rooms. Stacked decks are organized as inhabitable planes that structure the building section, mediating between interior life and the communal court created by adjacent properties. Together, they introduce a layered relationship to landscape that is largely absent from the neighborhood’s rigid orthogonal grid, transforming residual space into an active shared environment.

A full gut renovation allowed the interior to be reimagined around the existing structure rather than in spite of it. Original brick party walls, exposed floor joists, and historic fireplaces were retained and treated as generative elements, guiding spatial organization and material restraint. The upper unit was reconfigured to accommodate families of varying sizes, with rooms arranged to preserve continuity with the building’s original character while supporting contemporary living.

A crafted wood stair rises from the second through fourth floors, operating as both circulation and lightwell. This vertical spine draws daylight deep into the plan, connecting living spaces to a vaulted truss ceiling and private primary suite above. From here, roof access extends the sequence of exterior rooms upward, offering intimate views of the surrounding neighborhood and the distant skyline.

Throughout, the project seeks clarity through restraint. Thin cantilevered plates form entry canopies and roof edges, registering as precise lines rather than expressive gestures. The architecture belongs to its context not through imitation, but through measured contrast—establishing a contemporary presence that engages the existing urban fabric while proposing a renewed understanding of shared space within the rowhouse block.

Project Team

Owner                                        

Architect                                          

Project Manager             

Structural Engineer                   

General Contractor                                                         

Geddes Gilchrist

Skyplane Studio Architects

Skyplane Studio Architects

Larsen & Landis

Impact Construction